Proyectos | Equipamiento
DISEÑO INTERIOR DEPARTAMENTO TORRE MIRO 2 D  
Descripción del proyecto:

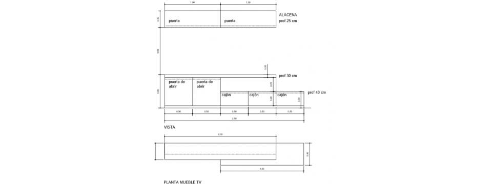
Diseño interior de todo el equipamiento de este departamento de dos dormitorios de la ciudad de Paraná.

Se diseñan todos los muebles sobre medida en living y dormitorios incluyendo también todo el equipamiento del living - comedor.