












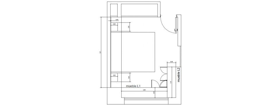
Propuesta de diseño para un dormitorio en suite de acotadas dimensiones.Se propone el blanco como fondo principal tratando de iluminar el ambiente marcando las profundidades.
El resultado final de la propuesta de colores define al azul como el protagonista de corte.
La reforma se encuentra actualmente en proceso de obra.