












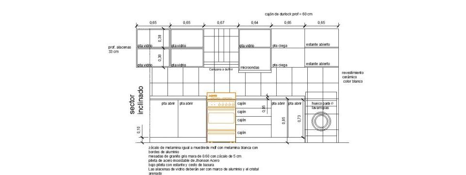
Diseño y reforma de departamento. Se trabajo en la cocina sobre medida. Equipamiento lineal con lavadero incorporado. Isla desayunadora.
Además se rediseño el placard del dormitorio, se pulieron y laquearon los pisos de madera macisa, y se realizó todo el cableado de la instalación eléctrica además de la ejecución del tablero principal.
Las primeras imagenes muestran la situación previa a la obra.