Proyectos | Residenciales
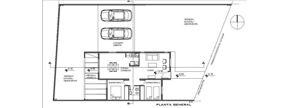
VIVIENDA LOS NARANJOS  
Descripción del proyecto:

Proyecto y dirección de obra vivienda Los Naranjos 39 de la ciudad de Paraná.

Superficie cubierta: 65 m2.

Superficie semicubierta: 15 m2.